Honda 2001 Body Electrical22A-1
Rear Window Defogger 22A-122
Previous Page Next Page



Rear Window Defogger 22A-122

Component Location Index

NOTE: LHD type is shown, RHD type is similar.


1

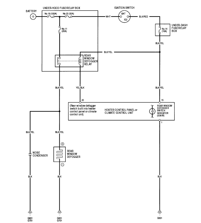
UNDER-HOOD FUSE/RELAY BOX

2

REAR WINDOW DEFOGGER RELAY

Test, page 22A-62

3

NOISE CONDENSER

Capacity Test, page 22A-136

4

REAR WINDOW DEFOGGER

Function Test, page 22A-135 ; Defogger Wire Repair, page 22A-135

5

REAR WINDOW DEFOGGER SWITCH

built into the heater control panel or climate control unit




Circuit Diagram 22A-123


Function Test 22A-124

NOTE:

  • Be careful not to scratch or damage the defogger wires with the tester probe.
  • Before testing, check the No. 11 (20A) fuse in the under-hood fuse/relay box and No. 14 (10A) fuse in the under-dash fuse/relay box.
    1. Check for voltage between the positive terminal (A) on the right side of the glass and body ground with the ignition switch and defogger switch ON.
    2. There should be battery voltage.
    3. If there is no voltage, check for:
    4. faulty defogger relay.
    5. an open in the BLK/RED, BLK/YEL, or YEL/BLK wire.
    6. faulty the heater control panel or climate control unit.
    7. If there is battery voltage, go to step 2.


    8. Check for voltage between the positive terminal (A) and the negative terminal (B).
    9. If there is no voltage, check for:
    10. an open in the BLK wire.
    11. Poor ground (G601 or G701).
    12. Touch the voltmeter positive probe to the halfway point of each defogger wire, and the negative probe to the negative terminal.
    13. There should be about 6 V with the ignition switch and the defogger switch ON.
    14. If the voltage is as specified, the defogger wire is OK.
    15. If the voltage is not as specified, repair the defogger wire.
    16. If there is battery voltage, there is a break in the negative half of the grid.
    17. If it there is 0 V, there is a break in the positive half of the grid.

    Defogger Wire Repair 22A-124

    NOTE: To make an effective repair, the broken section must be no longer than 1 inch.

    1. Lightly rub the area around the broken section (A) with fine steel wool, then clean it with alcohol.


    2. Carefully mask above and below the broken portion of the defogger wire (B) with transparent tape (C).
    3. Mix the silver conductive paint thoroughly. Using a small brush, apply a heavy coat of the paint (commercially available defogger grid repair material) extending about 1/8'' on both sides of the break. Allow 30 minutes to dry. Mix the paint before use.


    4. Check for continuity in the repaired wire.
    5. Apply a second coat of paint in the same way. Let it dry 3 hours before removing the tape.

    Noise Condenser Capacity Test 22A-125

    1. Remove the right rear side trim panel (see page 20-77) .
    2. Disconnect the 2P connector (A) from the noise condenser.

    Noise Condenser capacity: 0.47 ± 0.09 microfarads

    Wire side of female terminals


    1. Use a commercially available condenser tester. Connect the condenser tester probes, and measure the condenser capacity.
    2. If not within the specifications, replace the noise condenser.


    Honda 2001 Body Electrical22A-1
    Rear Window Defogger 22A-122
    Previous Page Next Page