Honda 2001 Body Electrical22A-1
Sunroof 22A-126
Previous Page Next Page



Sunroof 22A-126

Component Location Index

NOTE: LHD type is shown, RHD type is similar.


1

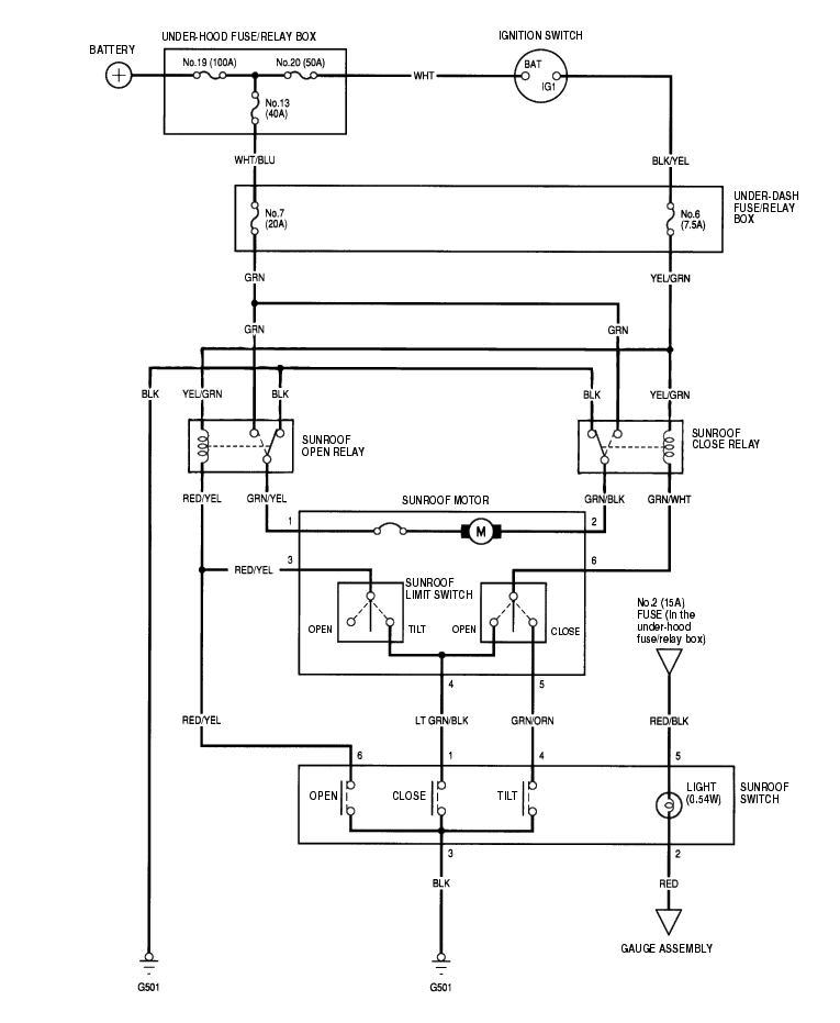
SUNROOF SWITCH

Test, page 22A-140

2

SUNROOF MOTOR

Test, page 22A-139 Replacement, page 20-68

3

SUNROOF OPEN RELAY

Test, page 22A-62

[Wire colors: GRN/YEL, GRN, RED/YEL, BLK and YEL/GRN]

SUNROOF CLOSE RELAY

Test, page 22A-62

[Wire colors: GRN/BLK, GRN, GRN/WHT, BLK and YEL/GRN]




Circuit Diagram 22A-127


Motor Test 22A-128

  1. Remove the headliner (see page 20-81) .
  2. Disconnect the 6P connector (A) from the sunroof motor (B).


Motor test:
  1. Check the motor by connecting power and ground according to the table.


  2. If the motor does not run or fails to run smoothly, replace it.
  3. NOTE: See the closing force check (see page 20-74) for the motor clutch test.
Limit switch test:
  1. Check for continuity between the terminals in each switch position according to the table.
  2. NOTE: Turn the motor by hand with the wrench.


  3. If the continuity is not as specified, adjust the limit switch (see page 20-73) , and recheck.
  4. If the continuity is still not as specified, replace the moonroof motor.

Switch Test/Replacement 22A-129

  1. Remove the dashboard lower cover (see page 20-88) .
  2. Disconnect the 6P connector (A) from the sunroof switch (B), and remove the sunroof switch.


  3. Check for continuity between the terminals in each switch position according to the table.


  4. If the continuity is not specified, replace the bulb (C) or the switch.


Honda 2001 Body Electrical22A-1
Sunroof 22A-126
Previous Page Next Page