Honda 2001 Wiring diagrams78-1
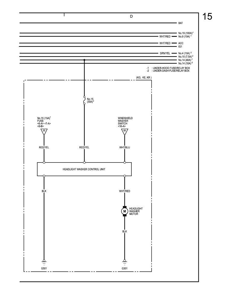
Seat Heater, Wipers/Washers (Headlight Washer) (cont'd) 78-61
Previous Page Next Page



Seat Heater, Wipers/Washers (Headlight Washer) (cont'd) 78-61




Honda 2001 Wiring diagrams78-1
Seat Heater, Wipers/Washers (Headlight Washer) (cont'd) 78-61
Previous Page Next Page