Honda 2001 Body20-1
Frame20-168
Previous Page Next Page



Frame20-168

Sub-frame Replacement

Front Sub-frame Torque

NOTE: After loosening the sub-frame mounting bolts, be sure to replace them with new ones.


20-169

Rear Sub-frame Torque

NOTE: After loosening the sub-frame mounting bolts, be sure to replace them with new ones.


Frame Stiffener Replacement20-170

Front Strut Bar, Steering Gearbox Rod and Rear Frame Pipe Torque


20-171

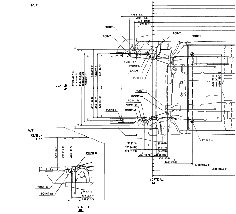
Frame Repair Chart20-171

Top View

Unit: mm (in.)

Ø: Inner diameter

a

For sub-frame Ø16 (0.63)

 

h

For damper mount Ø11.5 (0.45)

b

For engine mount Ø13 (0.51)

 

i

For damper center Ø78 (3.07)

c

For engine mount Ø13 (0.51)

 

j

For damper mount Ø11.5 (0.45

d

For engine mount Ø13 (0.51)

 

k

For damper mount Ø11.5 (0.45)

e1

For M/T transmission mount Ø13 (0.51)

 

l

For sub-frame Ø16 (0.63)

e2

For A/T transmission mount Ø13 (0.51)

 

l1

For sub-frame Ø16 (0.63)

f1

For M/T transmission mount Ø13 (0.51)

 

m

Locating hole Ø27.4 (1.08)

f2

For A/T transmission mount Ø13 (0.51)

 

n

Locating hole Ø50 (1.97)

g1

For M/T transmission mount Ø13 (0.51)

 

 

g2

For A/T transmission mount Ø13 (0.51)

 





20-172

o

Locating hole Ø25 (0.98)

 

t

Rear damper center Ø68 (2.68)

p

Locating hole Ø25 (0.98)

 

u

For rear cross beam Ø15 (0.59)

p1

Locating hole Ø25 (0.98)

 

u2

Locating hole Right side: Ø13 (0.51)/Left side: Ø15 (0.59)

p2

Locating hole Ø23 (0.91)

 

v

For rear cross beam Ø15 (0.59)

q

For trailing arm Ø14 (0.55)

 

w

Locating hole Ø50 (1.97)

r

Locating hole Ø20 (0.79)

 

x

Locating hole Ø25 (0.98)

s

For trailing arm Ø14 (0.55)

 

 





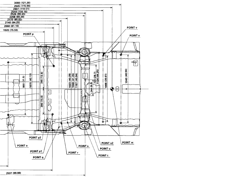
Frame Repair Chart (cont'd)20-173

Side View

Unit: mm (in.)

Ø: Inner diameter

a

For sub-frame Ø16 (0.63)

  

h

For damper mount Ø11.5 (0.45)

b

For engine mount Ø13 (0.51)

 

i

For damper center Ø78 (3.07)

c

For engine mount Ø13 (0.51)

 

j

For damper mount Ø11.5 (0.45

d

For engine mount Ø13 (0.51)

 

k

For damper mount Ø11.5 (0.45)

e1

For M/T transmission mount Ø13 (0.51)

 

l

For sub-frame Ø16 (0.63)

e2

For A/T transmission mount Ø13 (0.51)

 

l1

For sub-frame Ø16 (0.63)

f1

For M/T transmission mount Ø13 (0.51)

 

m

Locating hole Ø27.4 (1.08)

f2

For A/T transmission mount Ø13 (0.51)

 

n

Locating hole Ø50 (1.97)

g1

For M/T transmission mount Ø13 (0.51)

 

 

g2

For A/T transmission mount Ø13 (0.51)

 





20-174

o

Locating hole Ø25 (0.98)

 

t

Rear damper center Ø68 (2.68)

p

Locating hole Ø25 (0.98)

 

u

For rear cross beam Ø15 (0.59)

p1

Locating hole Ø25 (0.98)

 

u2

Locating hole Right side: Ø13 (0.51)/Left side: Ø15 (0.59)

p2

Locating hole Ø23 (0.91)

 

v

For rear cross beam Ø15 (0.59)

q

For trailing arm Ø14 (0.55)

 

w

Locating hole Ø50 (1.97)

r

Locating hole Ø20 (0.79)

 

x

Locating hole Ø25 (0.98)

s

For trailing arm Ø14 (0.55)

 

 







Honda 2001 Body20-1
Frame20-168
Previous Page Next Page