

|
Q.
Is the check result normal?
Go to Step 2.
Repair the defective connector.
|
|
|
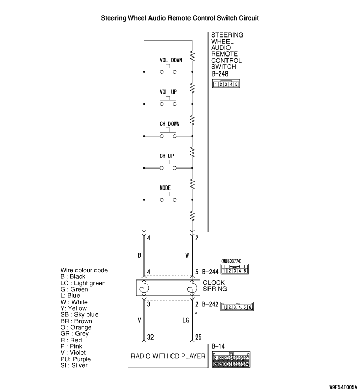
Check the steering wheel audio remote control switch (Refer to ).
|
|
|
Q.
Is the check result normal?
|
|
|
Replace the steering wheel audio remote control.
|
|
|
|


|
Q.
Is the check result normal?
Go to Step 4.
Repair the defective connector.
|
|
|
Check whether the clock spring is in good condition. Refer to GROUP 52B - Driver’s,
front passenger’s Air Bag Module(s) and Clock Spring .
|
|
|
Q.
Is the check result normal?
|
|
|
Replace the clock spring.
|
|
|
|


|
Q.
Is the check result normal?
Go to Step 6.
Repair the defective connector.
|




|
- Check the communication lines for open and short circuit.
Q.
Is the check result normal?
Go to Step 7.
Repair the wiring harness.
|


|
Q.
Is the check result normal?
Go to Step 8.
Repair the defective connector.
|


|
- Check the communication lines for open and short circuit.
Q.
Is the check result normal?

Repair the wiring harness.
|
|
|
Check whether you can operate the radio with CD player by using the steering wheel audio
remote control switch.
|
|
|
Q.
Is the check result normal?
|
|
|
The trouble can be an intermittent malfunction (Refer to GROUP 00 - How
to use Troubleshooting/inspection Service Points - How to Cope with Intermittent
Malfunction ).
|
|
|
|
|
|
Replace the radio with CD player.
|
|
|
|