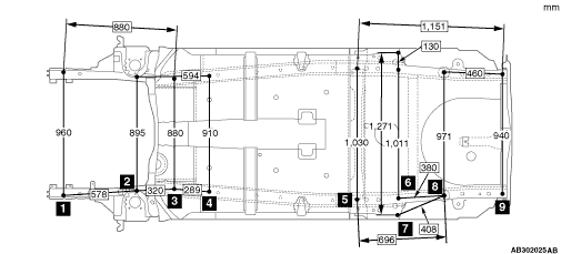
UNDER BODY <COLT>





No.
Standard measurement point
Hole shape
Size mm
1
Centre of front sidemember inner positioning hole
Round
25
2
Centre of crossmember mounting hole
Round
15
3
Centre of crossmember mounting hole
Round
16
4
Centre of front sidemember rear positioning hole
Round
25
5
Centre of rear floor sidemember water draining hole
Oblong
37.5 × 21.6
6
Centre of torsion axle arm mounting hole
Round
12.5
7
Centre of torsion axle arm mounting hole
Round
12.5
8
Centre of spring sheet positioning hole
Round
12
9
Centre of towing hook mounting hole
Round
13