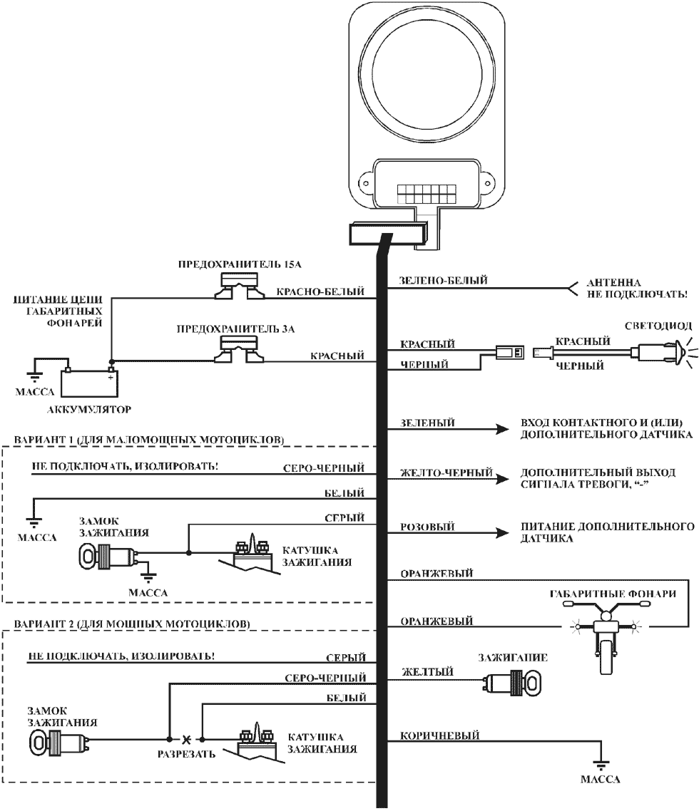
Охранная сигнализация для мотоциклов GT 607 выполненная в виде автономного моноблока. Номинальное напряжение питания +12В. Зоны охраны: зажигание, контактный датчик, встроенный датчик удара, отключение питания. Встроенное реле блокировки. Фиксированный персональный код для аварийного отключения режима охраны. Код занесен на специальную карточку. Дополнительный программируемый выход сигнала тревоги ("масса" при тревоге, постоянный или прерывистый, ток до 1А). Выход для питания дополнительного датчика. Сигнализация управляется динамическим кодом. Рабочая частота 433, 92МГц.
Сигнализация произведена в Италии и имеет европейский сертификат качества. Корпус сигнализации в собранном виде соответствует по степени защиты от внешних воздействий классу IP54.

SW1 - вид сигнала тревоги на дополнительном выходе: ON - постоянный, OFF - прерывистый.
SW2 - режим записи кодов брелков - ВКЛ/ВЫКЛ.
| № конт.* | Цвет провода | Назначение цепи |
|---|---|---|
| 1 | Серый | Нормально замкнутый контакт встроенного реле блокировки** |
| 2 | Желтый | Вход зажигания |
| 3 | Коричневый | Общий ("масса") |
| 4 | Желто - черный | Дополнительный выход сигнала тревоги, "-" 1А |
| 5 | Розовый | Питание дополнительного датчика (+12В в охране) |
| 6 | Черный | Выход на светодиодный индикатор, "-" |
| 7 | Зелено-белый | Антенна. НЕ ПОДКЛЮЧАТЬ! НЕ ОБРЕЗАТЬ! ОСТАВИТЬ СВОБОДНЫМ! ИЗОЛИРОВАТЬ КОНЕЦ! |
| 8 | Серо-черный | Нормально разомкнутый контакт встроенного реле блокировки** |
| 9 | Белый | Общий контакт встроенного реле блокировки** |
| 10 | Красный | Питание +12В, предохранитель 3А |
| 11 | Оранжевый | Выход на габаритные фонари |
| 12 | Оранжевый | Выход на габаритные фонари |
| 13 | Бело-красный | Питание габаритных фонарей, предохранитель 15А |
| 14 | Зеленый | Вход контактного и/или дополнительного датчика, "-" |
* Нумерация проводов соответствует обозначению на розетке разъема.
** Реле включается при включении зажигания и при выключенном режиме охраны.
Для включения режима охраны, при выключенном зажигании, нажмите большую кнопку брелка. Прозвучит один сигнал сирены, один раз вспыхнут габаритные фонари. Светодиод будет непрерывно светиться в течение 60-и секунд, затем замигает короткими вспышками с частотой около 1 Гц.
Цепь зажигания и контактный датчик включаются в охрану через 5 секунд после включения режима охраны, датчик удара - через 60 секунд. Если сигнализация обнаружит активный датчик по окончании пассивного периода (5 секунд или 60 секунд в зависимости от типа датчика) включится тревога. При включении режима охраны с активным контактным датчиком длительность звуковых и световых сигналов удваивается.
С момента включения режима охраны, как только засветится светодиод, цепь блокировки не замыкается при включении зажигания.
Для временного отключения встроенного датчика удара и дополнительного датчика, не позже, чем через две секунды после включения режима охраны, нажмите большую кнопку брелка еще раз. Сигнализация подтвердит выключение датчиков вспышкой габаритных фонарей и сигналом сирены.
При включении зажигания, срабатывании датчика удара или контактного датчика, а также при отключении питания или падении напряжения в бортовой сети ниже 6В, в режиме охраны сигнализация включает режим тревоги. Длительность одного цикла тревоги 28 секунд. При этом звучит сирена, мигают габаритные фонари. Количество циклов тревоги, вызванных срабатыванием датчиков, в одном цикле включения охраны ограничено:
После чего датчик удара игнорируется до следующего включения режима охраны, а контактный датчик и цепь зажигания - до момента восстановления нормального состояния.
Для выключения режима охраны нажмите большую кнопку брелка. Два раза вспыхнут габаритные фонари, прозвучат два сигнала сирены, светодиод погаснет. После выключения режима охраны встроенное реле блокировки срабатывает при включении зажигания.
Если после выключения режима охраны последуют не два, а четыре световых и звуковых сигнала, это означает, что сигнализация срабатывала в период охраны. Причину последнего срабатывания можно выяснить по показаниям светодиодного индикатора, который после включения зажигания будет работать в режиме "несколько вспышек - пауза". Количество вспышек означает срабатывание датчиков:
Индикация будет сохраняться в течение 1-й минуты или до момента выключения зажигания, и повторяться после каждого включения зажигания.
Режим "паника" включает режим тревоги с неограниченной длительностью как при включенном, так и при выключенном режиме охраны. Цепь зажигания во время "паники" блокируется, даже если она включена при выключенном режиме охраны. Для включения режима нажмите малую кнопку брелка. Для прерывания режима "паника", также нажмите малую кнопку брелка. После выключения режима паники сигнализация останется в том же состоянии, в котором находилась до включения
Для нормальной работы встроенного датчика удара моноблок должен быть установлен вертикально, жгутом вниз. Потенциометр, регулирующий чувствительность датчика удара выведен под съемную крышку дополнительного окна в корпусе моноблока. Регулировка необходима для установки оптимальной чувствительности датчика в условиях эксплуатации. Завышение чувствительности датчика удара приводит к ложным срабатываниям, что в условиях программного ограничения количества срабатываний приводит к его преждевременному отключению. Регулировку необходимо проводить с помощью специальной отвертки имеющейся в комплекте.
Всего в память устройства могут быть записаны коды восьми брелков, причем код одного и того же брелка может быть записан неоднократно, а при записи восьмого кода стирается код записанный первым, и т. д.
Для записи кодов брелков:
Для стирания кодов потерянных брелков запишите коды рабочих брелков повторно, так, чтобы заполнить память устройства (в сумме до восьми раз).
Для аварийного отключения режима охраны в случае потери или неисправности брелка используется программируемый изготовителем персональный четырехразрядный десятичный код. Значение кода вписано в карточку, прилагаемую к каждому экземпляру сигнализации.
Для аварийного отключения режима охраны:
После включения питания сигнализации, если перерыв составил не менее 10 минут, до первого включения зажигания сигнализация находится в тестовом режиме. Включение тестового режима сопровождается одним коротким сигналом сирены. В тестовом режиме сигнализация не управляется брелками, питание дополнительного датчика включено, каждое срабатывание датчика удара сопровождается коротким сигналом сирены, активизация контактного датчика сопровождается длительным сигналом сирены. Для выключения тестового режима необходимо включить и выключить зажигание, последуют три подтверждающих сигнала сирены.
